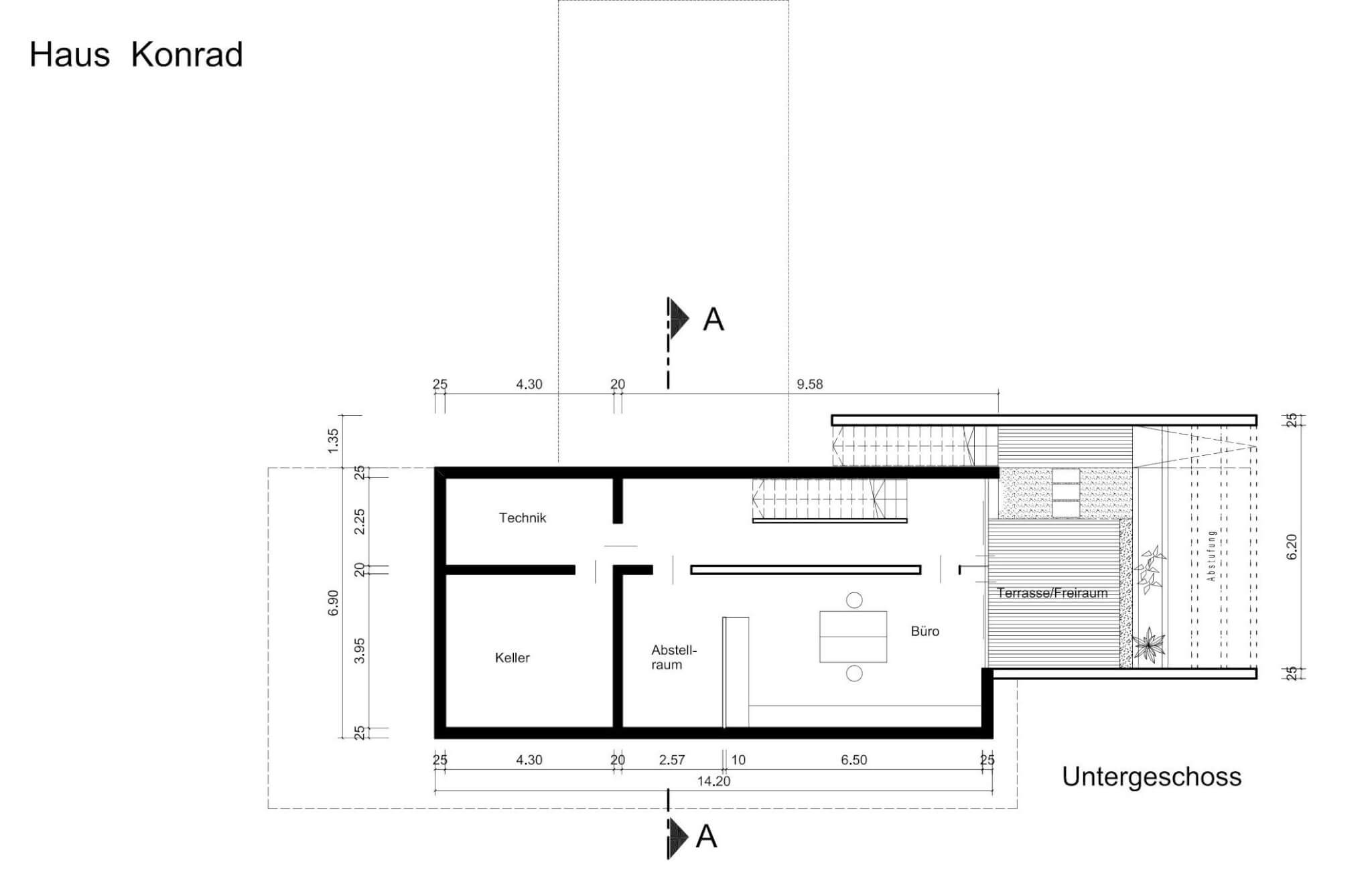
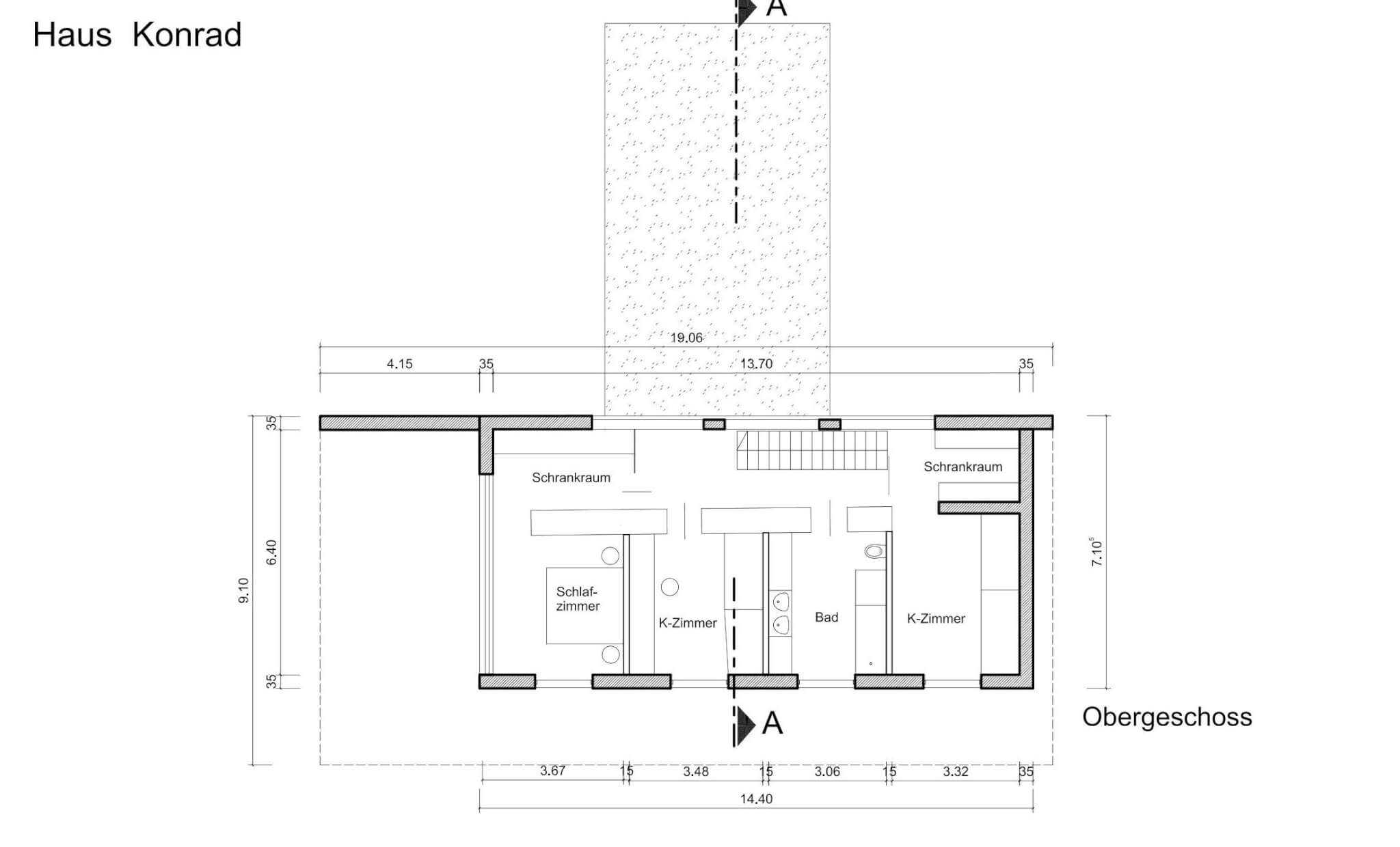
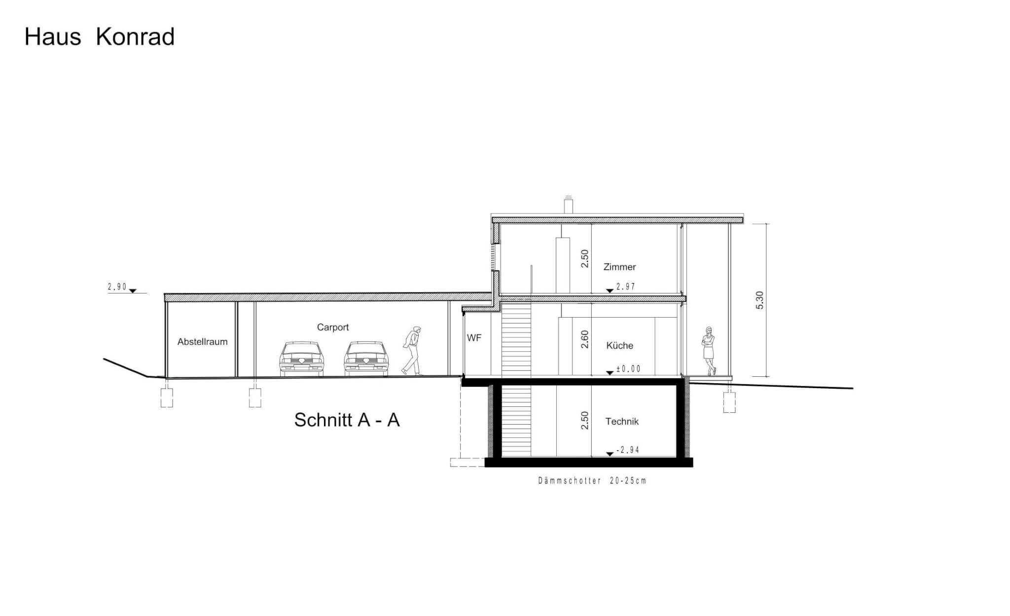
Haus KR Dellach im Drautal Ausführung in Holzbauweise Heizung: Pellets u. Kontrollierte Wohnraumlüftung