Rangersdorf
Architektonisches Konzept:
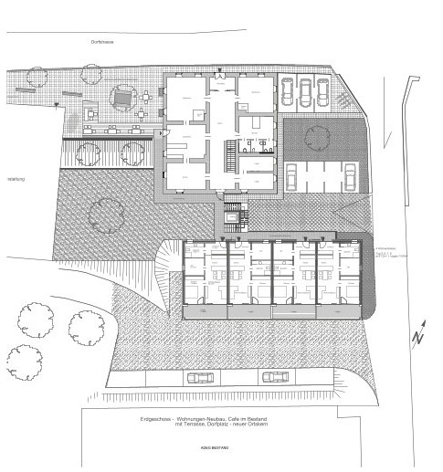
Ein intensiver Diskussionsprozess mit den Bauherr:innen und weiteren Interessierten in Hinblick auf eine nachhaltige Nutzung der beiden ländlichen Kulturdenkmäler brachte folgende Ergebnisse: Das sowohl von der Größe als auch von der Konstruktion her außergewöhnliche Wirtschaftsgebäude soll als ein auf zwei Ebenen (Tenne und Obertenne) vielfältig bespielbarer Veranstaltungsraum fungieren, die historischen Räumlichkeiten im Erdgeschoss des alten Wirtshauses werden als „Dorfcafe“ einer neuen gastronomischen Nutzung zugeführt. Im ersten Stock sollen 6 „betreubare“ Kleinwohnungen entstehen sowie im Dachgeschoss 4 Wohneinheiten. Die Ergänzung des historischen Ensembles durch einen modernen Zubau würde nicht nur zusätzlichen leistbaren Wohnraum schaffen, sondern auch das Gesamtprojekt wirtschaftlich absichern.
Die Planungsarbeiten für die Sanierung und Revitalisierung der beiden alten Gebäude erfolgten in enger Abstimmung mit dem Denkmalschutz korrespondieren und harmonieren und gleichzeitig eindeutig als zeitgemäßes und eigenständiges architektonisches Statement erkennbar sein. Von besonderer Bedeutung erschien die Separierung zwischen Wirtshaus und Neubau, um das historische Wirtshaus möglichst in seiner ursprünglichen Form sichtbar zu belassen.
Der Neubau, der als Holzbau umgesetzt und aufgrund seiner innovativen architektonischen Qualität als Leuchtturmprojekt der Österreichischen Holzinitiative ausgezeichnet wurde, umfasst insgesamt acht Wohnungen in gleicher Größe und mit nahezu gleichem Grundriss. Die Einheiten verfügen jeweils über einen Eingangsbereich, eine Wohnküche, zwei Zimmer, ein Bad/WC und südseitig über eine schöne Loggia. Im Untergeschoss erstrecken sich 9 Carportplätze, Technikräume, Müllraum sowie Kellerabteile für die einzelnen Wohnungen.
Die Ausführung des Zubaus in moderner Holzbauweise (BSP – Holzplattenbauweise) stellt nicht nur architektonisch eine ideale Ergänzung des historischen Ensembles dar, sondern nutzt auch den seit jeher eingesetzten natürlichen Rohstoff Holz.
Neben dem Prinzip der Nachhaltigkeit stand in der Planung auch die Kommunikation und Verbidung im Vordergrund – dies gilt für Gebäude und Bewohner:innen. Barrierefreie Begegnungszonen in verschiedenen Bereichen, wie zum +Beispiel der großzügige Gemeinschaftsraum, die geräumige Terrasse auf dem Flachdach des Neubaus, der freistehende Erschließungstrakt mit Lift und Stiegenhaus zwischen den beiden Wohngebäuden sowie eine dichte Wegvernetzung (die zudem Reminizenz an die Wegführung im alten Gasthaus ist) tragen wesentlich zum intendierten „Dialog der Generationen bei).
In Verbindung mit den Außenanlagen, u.a. ein neuer Dorfplatz, für den zum Teil die Gemeinde als Bauherrin auftrat, wurde mit dem Projekt „Wirt zu St. Peter“,gestaltet und neu belebt.









